






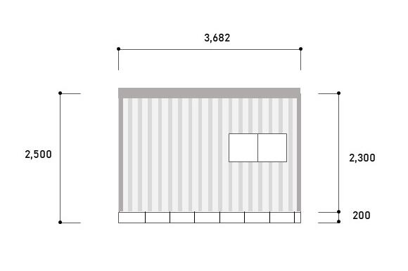
プレハブSタイプ_10.5帖(3,682mm×4,410mm)
¥870,300 税込
別途送料がかかります。送料を確認する
★格安のプレハブ組み立てキット★
製造直販に加え、組立て工事代がかからないため格安にて販売しております。
当該プレハブには、土台・床・壁・天井・屋根のパーツと組み立てに必要な資材が含まれております。
1~2日ほどで組み立てが可能です。
壁がパネルになっていますので、窓壁の配置は一部条件は御座いますが自由に決められます。
※窓壁は小壁2枚分のサイズとなります。
◆壁パネルの種類◆◆◆◆◆◆◆◆◆◆◆◆◆◆
・小壁パネル 728mm×2,300mm
・中壁パネル 1,092mm×2,300mm
・窓壁パネル 1,456mm×2,300mm
・ドア壁パネル 1,456mm×2,300mm
◆◆◆◆◆◆◆◆◆◆◆◆◆◆◆◆◆◆◆◆◆◆
◆注意事項◆◆◆◆◆◆◆◆◆◆◆◆◆◆◆◆◆◆◆◆◆◆◆◆◆◆◆◆◆◆◆◆◆◆
1.当プレハブは、建築基準法には準拠しておりません。
※建築確認申請を取得される場合は、お問合せのうえご相談ください。
2.設計図・構造図等はなく、簡易的な間取図・見取図・組立図となりますのでご了承ください。
3.当プレハブは、耐雪用にはできておりません。(屋根は、二重張りで耐雪60cm程度)
4.法律上・安全上・施工上において、設置工事ができないことがあります。
5.当プレハブは、木造のため変形しやすいため、商品到着後、速やか(1週間以内を目途)に組み立てを行ってください。
6.ブロックやモルタル・コンクリートは含まれておりません。
◆◆◆◆◆◆◆◆◆◆◆◆◆◆◆◆◆◆◆◆◆◆◆◆◆◆◆◆◆◆◆◆◆◆◆◆◆◆◆◆
-
送料・配送方法について
-
お支払い方法について